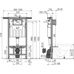
Alcadrain modul do jádra AM102/1120 pro suchou instalaci výška 1,2m s vhazovačem tablet P169 (AM102/1120P169)
Předstěnový instalační systém pro suchou instalaci (především při rekonstrukci bytových jader)
-Pro závěsné WC
-Pro rekonstrukce bytových jader
-Pro instalaci mezi dvě stěny
-Pro instalaci do dřevostaveb
-Pro tloušťku podlah 0-200 mm
-Pro montáž závěsného WC s připojovací roztečí 180 mm nebo 230 mm
Nastavitelné kotvící výsuvné nohy s brzdou v rozmezí 0-200 mm
Viditelné označení nivelace a středové rysky
Posuvný mechanismus držáku odpadu v osmi polohách ve vzdálenosti 0-93 mm
Rohový ventil s možností na napojení na potrubní systém Mepla
Zatížení přenáší do bočních stěn rozpěrná traverza stavitelná v rozsahu 830-1200 mm
Nainstalovaný systém se zaklopí sádrokartonovými deskami a nejsou potřeba žádné přídavné vyztužující ani kotvící prvky
Konstrukce polystyrenové izolace zabraňuje rosení na povrchu nádržky a tlumí prostup vibrací z nádržky do stavební konstrukce
Příprava na připojení držáku s DG1/2" přechodem pro bidetovací sedátka a spršky
Duální splachování, nezávisle nastavitelné s hygienickou rezervou
Možnost vestavby oddáleného nebo senzorového splachování
Kompatibilní se všemi ovládacími tlačítky Alcadrain
Nádržka je vyrobena z jednoho kusu, čímž je zaručena 100% nepropustnost
Přívod vody zezadu/shora uprostřed
Servisní práce bez použití nářadí
Kryt servisního otvoru zjednodušuje montáž a brání pronikání vlhkosti a nečistot
Montážní hloubka nastavitelná v rozmezí 20-95 mm
Stavební hloubka 125 mm
Materiál nosné konstrukce: kov ošetřený práškovou barvou
Ovládací tlačítko pro předstěnové instalační systémy, chrom-lesk (M1721)
Možnost barevného kombinování základní desky a splachovacích tlačítek
Dvoučinné mechanické splachování
Povrchová úprava: chrom-lesk
Kompatibilní pro všechny předstěnové instalační systémy a nádrže pro zazdění Alcadrain
Materiál: plast
Závěsná WC mísa RIMLESS Carlo Mini Slim černá matná (REA-C8489)
- rozteč otvorů: 18 cm
- šířka mísy: 35,5 cm
- výška mísy: 32,5 cm
- hloubka mísy: 48,5 cm
- včetně duroplastového prkénka SLIM-pozvolna padající, odnímatelné
Díky speciální technologii výroby je mísa odolná, zabraňuje usazování nečistot a bakterií na špatně přístupných místech a snadno se tak čistí. Součásí WC mísy je duroplastové sedátko SLIM-pozvolna padající.
Krásná, mimořádně funkční a moderní závěsná WC mísa Rea Carlo Mini Slimdokonale vyplní váš prostor v koupelně při zachování dokonalého vzhledu a estetiky interiéru. WC mísa je přizpůsobena pro instalaci na podomítkovou montáž. Byla vyrobena z vysoce kvalitní sanitární keramiky s matným povrchem.
v oboru
nákupu nad 9 999 Kč
k zákazníkovi
30 000 položek



















